建筑剖面图、断面图怎么看?
建筑剖面图、断面图怎么看?
剖面图怎么看,只需4个步骤就能看懂剖面图
摘要:剖面图又称剖切图,是通过对有关的图形按照一定剖切方向所展示的内部构造图例建筑剖面图,通过剖面图的形式形象地表达设计思想和意图,能够直观地了解工程的概况或局部的详细做法以及材料的使用。
一、建筑剖面图的形成与用途

假想用一个或一个以上的铅垂剖切平面剖切建筑物,得到的剖面图称为建筑剖面图,简称剖面图。
建筑剖面图用以表示建筑内部的结构构造、垂直方向的分层情况、各层楼地面、屋顶的构造及相关尺寸、标高等。
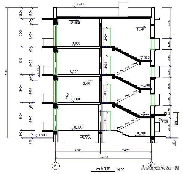
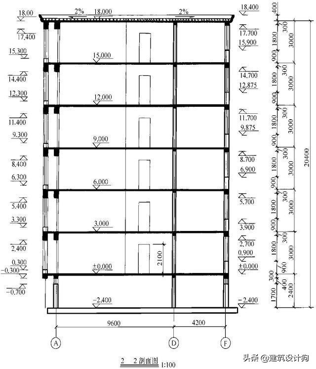
剖切的位置常取楼梯间、门窗洞口及构造比较复杂的典型部位。
剖面图的数量,则根据房屋的复杂程度和施工的实际需要而定。
剖面图的名称必须与底层平面图上所标的剖切位置和剖视方向一致。

剖面剖切符号

断面剖切符号
二、剖面图的图示内容及规定画法
1、定位轴线
应注出被剖切到的各承重墙的定位轴线及与平面图一致的轴线编号和尺寸。
2、图线
室内外地坪线用加粗实线表示。
地面以下部分,从基础墙处断开,另由结构施工图表示。
剖面图的比例应与平面图、立面图的比例一致。
①比例小于1:50的剖面图 ,可不画出抹灰层,但宜画出楼地面、屋面的面层线;
②比例大于1:50的剖面图,应画出抹灰层、楼地面、屋面的面层线,并宜画出材料图例;
③比例等于1:50的剖面图,宜画出楼地面、屋面的面层线,抹灰层的面层线应根据需要而定;
在剖面图中一般不画材料图例符号,被剖切平面剖切到的墙、梁、板等轮廓线用粗实线表示,没有被剖切到但可见的部分用细实线表示,被剖切断的钢筋混凝土梁、板涂黑。但宜画出楼地面、屋面的面层线。

3、尺寸注法
在剖面图中,应注出垂直方向上的分段尺寸和标高。
(1)垂直分段尺寸:一般分三道
①最外一道是总高尺寸:它表示室外地坪到楼顶部女儿墙的压顶抹灰完成后的顶面的总高度。
②中间一道是层高尺寸:主要表示各层的高度
③最里一道是门窗洞、窗间墙及勒脚等的高度尺寸
(2)标高:应标注被剖切到的外墙门窗口的标高,室外地面的标高,檐口、女儿墙顶的标高,以及各层楼地面的标高。
三、剖面图的识读
1.先了解剖面图的剖切位置与编号
2.了解被剖切到的墙体、楼板和屋顶
3.了解可见的部分
4.了解剖面图上的尺寸标注

四、剖面图的绘图方法和步骤
1、根据进深尺寸,画出墙身的定位轴线;根据标高尺寸定出室内外地坪线、各楼面、屋面及女儿墙的高度位置。
2、画出墙身、楼面、屋面轮廓。
3、定门窗和楼梯位置,画出梯段、台阶、阳台、雨篷、烟道等。
4、检查无误后,擦去多余作图线,按图线层次描深。画材料图例,注写标高、尺寸、图名、比例及文字说明。
-
- 华为两款万元新机上市:折叠屏天花板+影像天花板,最高1TB储存
-
2025-12-24 15:40:17
-
- 《破冰行动》蔡军为啥这么软弱?这样的人现实中还能干得下去吗
-
2025-12-24 15:38:02
-
- 又高又硬的舒梅切尔
-
2025-12-24 15:35:48
-
- 一个人有没有心眼,看脸就知道
-
2025-12-24 15:33:34
-
- 偃师市,传说因木匠偃师制造木头人取乐穆天子而得名
-
2025-12-24 15:31:19
-
- 深扒2003年“张钰事件”
-
2025-12-24 15:29:05
-
- 日本神话中地位最崇高的神:邪马台国女王卑弥呼
-
2025-12-24 15:26:51
-
- 泥鳅钓翘嘴心得分享
-
2025-12-24 15:24:36
-
- 名著阅读 || 《红岩》考点梳理
-
2025-12-24 15:22:22
-
- 海派家居的前世今生
-
2025-12-24 15:20:07
-
- 开国君王~成汤
-
2025-12-23 23:06:09
-
- 二战武器之反坦克炮
-
2025-12-23 23:03:55
-
- 不忍直视!女校长在群里发不雅视频后续,本人回应来了
-
2025-12-23 23:01:41
-
- Top50最具影响力众筹平台Top50:京东居首
-
2025-12-23 22:59:26
-
- 05年100元纸币,卖了1913元!你能找到吗?
-
2025-12-23 22:57:12
-
- 最近,新任俄罗斯驻华大使抵京履新,曾留学北京名校!
-
2025-12-23 22:54:58
-
- 中国的别称,你所知道的有哪些?
-
2025-12-23 22:52:43
-
- 震撼全网!孙悟空墓穴终被揭开,传说中的金箍棒也揭晓其长达七米
-
2025-12-23 22:50:29
-
- 泽州县山里泉风景区:风光秀丽 群峰壁立
-
2025-12-23 22:48:14
-
- 无反相机最快对焦,来看看索尼6000微单
-
2025-12-23 22:46:00



翁帆的第一任丈夫照片和资料介绍,翁帆看不上普通的小职员
和谐玉溪多少钱一包?硬和谐40元一包(烟味绵长)